Générateur de prix de la construction.

Générateur de Prix.

Réhabilitation. Algérie

© CYPE Ingenieros, S.A.

 

Programmes pour l'Architecture, l'Ingénierie et la Construction

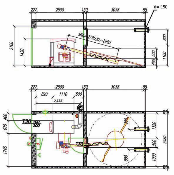
Pour chaudière de puissance comprise entre 15 et 60 kW
Pour chaudière de puissance comprise entre 15 et 60 kW